Villaggio               sul Mare
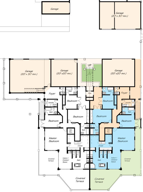
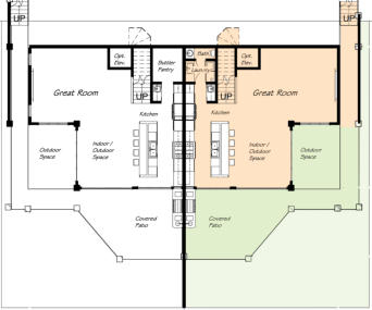
‘Rough’ Conceptual Study of multi-generational homes - in a coastal resort setting - with a private trail system to a hillside park. Reflects approx. 100,000 total salable sq. ft. with 8 to 24 total homes, plus Guest/ADU/Office/Flex Space. The four buildings were designed to maintain the total salable sq. ft. while providing the flexibility for each to contain two to six homes. Current study/plan includes 100’ fire setback Large second bedrooms with private baths and terraces. Wall of glass doors seamlessly transition onto terraces and adjacent natural terrain. Seamless transition of interior and exterior cooking and dining areas - Butler pantries. Spacious ‘Flex Space’ with separate entries can be customize as guest/in-law suites, bedrooms, offices…….
Yard - Level 0
Guest - Level 3
Guest - Level 2
Home 2 - with Grand Terraces & Guest/ADU/Flex space See Alt. B
Upper - Level 3
Entry - Level 2
Optional Terrace - Roof
Home 4 - w/ Grand Terrace
Home 3 - w/ Guest/ADU/Flex space
Entry - Level 3
Entry - Level 1
Entry - Level 2
Home 6 -
- Level 3
- Level 2
Home 1 - with Yard (with option for Home 1B an In-Law/ADU/Guest suite). See Alt. B
Optional Terrace - Roof
Home 5 -
Optional Terrace - Roof
Alternative   B     - Utilizes the three ‘Home 1B’ (with guest/ADU suite) and converts the three two-story ‘Home 2’ homes into six - single-level homes.
4 - 6 Plexs (Uses full site with 100’ Fire Zone)
4 - 6 Plexs (50% use of site)
6 - 4 Plexs  (Uses full site with 100’ Fire Zone)
Villaggio           sul Mare
A ‘Rough’ Conceptual Study of multi-generational homes - in a coastal resort setting - with private trail system to a hillside park Reflects approx. 100,000 total salable sq. ft. The four buildings were designed to maintain the total salable sq. ft. while providing the flexibility for each to contain two to six homes (8 to 24 total homes, plus Guest/ADU/Office/Flex Space). Current plan/study includes 100’ fire setback Large second bedrooms with private baths and terraces. Wall of glass doors seamlessly transition onto terraces and adjacent natural terrain. Seamless transition of interior and exterior cooking and dining areas - Butler pantries. Spacious ‘Flex Space’ with separate entries can be customize as guest/in- law suites, bedrooms, offices…….
Home 2 - with Grand Terraces & Guest/ADU/Flex space homes
Home 3 - w/ Guest/ADU/Flex space
Home 4 - w/ Grand Terrace
Entry - Level 1
Guest - Level 3
Yard - Level 0
Upper - Level 3
Optional Terrace - Roof
Entry - Level 2
Entry - Level 3
Optional Terrace - Roof
Guest - Level 2
Entry - Level 2
Home 1 w/ Yard (Home 1B can include an In-Law/Guest/ADU suite).
Alternative   B         (6   homes)     - Utilizes the ‘Home 1B’ (with guest/ADU suite) to convert ‘Home 2’ into seperate homes.
Home 5
- Level 2
Home 6
- Level 3
Optional Terrace - Roof
4 - 6 Plexs (Uses full site with 100’ Fire Zone)
4 - 6 Plexs (50% use of site)
6 - 4 Plexs  (Uses full site with 100’ Fire Zone)